Квартира в стиле скандинавский минимализм в ЖК Палаццо
В районе Балтийского завода на Васильевском острове сейчас строится много новых жилых комплексов и общественных пространств. В одном из таких, в ЖК Палаццо, приобрели квартиру наши заказчики.
Квартира расположена на последнем этаже и имеет особенность – большие окна в пол и собственный выход на террасу из всех комнат. С террасы открывается вид на памятник русского авангарда, завод «Красный гвоздильщик» и на действующие верфи Балтийского завода. Индустриально, но очень красиво.

Задача и сложности
Заказчики – молодая русско-финская семья. Они достаточно долго жили в центре города в старом фонде, но решили перебраться в новый дом.
К нам они обратились уже после покупки квартиры, на финальном этапе сдачи дома.
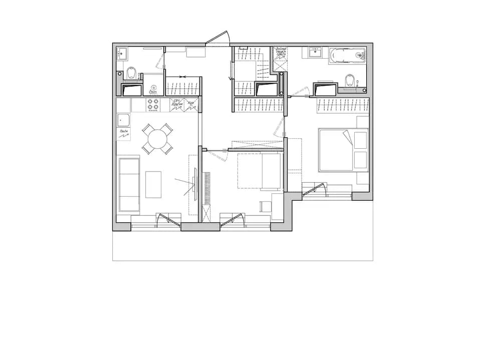
Изначальная планировка была очень проблемной. Во-первых, в двухкомнатной квартире абсолютно все межкомнатные стены оказались несущими. Это значит, просто так снести стену мы, конечно же, не могли. Во-вторых, через квартиру в коридоре транзитом проходил стояк канализации с люком для ревизии и вентиляционная труба.

У нас было два варианта: пойти на серьезные изменения планировочного решения или же сделать ремонт без перепланировки, но тогда никакие пожелания клиентов мы бы не смогли реализовать.
А пожелания были следующими:
- 2 санузла (один – с ванной, один – с душем),
- хозяйственный блок,
- кухня-гостиная,
- гардеробная,
- кабинет и спальня.
Весьма амбициозно для площади 66 кв. м. :) В итоге заказчики решили пойти на радикальную перепланировку, и мы приступили к работе.

Планировочное решение и выбор стиля
В двух несущих стенах мы проделали два проема по одной оси. Существующий санузел при входе увеличили за счет коридора и разместили там душевую.
На месте прежнего коридора появилась гардеробная. Также за счет его площади удалось увеличить ванную при спальне. Рядом с ней расположился небольшой хоз. блок.
Новый коридор сдвинулся вглубь квартиры и разместился на оси новых проемов. Таким образом нам удалось создать эффект анфиладности помещений.
При перепланировке в площади у нас уменьшился только кабинет. Спальня и кухня-гостиная остались в прежних габаритах.

Со стилем определились быстро – скандинавский дизайн в неброских тонах с небольшим количеством декора, но при этом домашний и уютный.
По опыту работы мы знаем, что финальный вид квартиры может отличаться от визуализаций. Но здесь же все вышло именно так, как и было задумано.
Несмотря на относительно небольшую площадь помещений, нам удалось разместить все, что хотели заказчики.
В кухне-гостиной вдоль двух стен расположилась Г-образная кухня. Возле окна – диван с журнальным столиком и оттоманкой. Напротив на стене – телевизор, но без тумбы, чтобы не загромождать пространство.

Напомним, что из каждой комнаты квартиры есть выход на террасу. Мы решили это обыграть.
Изначально выход на улицу был некомфортно высоким, т.к. уровень террасы на 40 см выше уровня пола в помещениях. К тому же, под частью окна был расположен низкий радиатор. Мы решили его не менять, но выглядел он не очень симпатично и нуждался в декорировании.
Радиатор мы закрыли деревянной тумбой, верхняя плоскость которой стала в один уровень с низом окна. Таким образом, появилась удобная площадка перед выходом на улицу, а чуть ниже, в створе открывающегося окна добавили еще одну ступень. Ширина тумбы получилась достаточно удобной, чтобы при желании на нее можно было присесть.

Элементы скандинавского минимализма в интерьере
В коридоре, при входе в квартиру разместилась гардеробная для хранения сезонных вещей. Здесь же – ниша для шкафа, где хранится повседневная верхняя одежда.
Далее в анфиладной части коридора вдоль стен стоят книжные шкафы и закрытые шкафы для вещей.
Спальня очень простая по наполнению: кровать, тумбочки и шкаф. Но у спальни есть бонус в виде увеличенной зоны террасы под навесом крыши, где стоят уличный столик, стеллаж для сезонных растений и два стула для уютных чаепитий летними вечерами. Индустриальный вид на заводские краны, старые цеха придает какую-то уютную романтику этой квартире.
В ванной при спальне в нише разместили хоз. блок со стирально-сушильной машиной и стеллаж для хранения бытовой химии и гладильной доски. На самом верху нашлось место для небольшого бойлера.

Основная цветовая гамма квартиры – сдержанно-серая, но есть нюансы. Для одной стены, которая проходит через всю квартиру от коридора и до наружной стены, мы выбрали грязный темно-зеленый цвет. Он неяркий, но своей глубиной придает помещениям объема.
В спальне стена за изголовьем кровати терракотового цвета. Он настолько приятный, что нет ощущения чрезмерного контраста с основным фоновым цветом стен. К тому же, при виде из кухни-гостиной выразительность перспективы подчеркивается этим цветом стены спальни. А при виде из спальни кухонный гарнитур с круглым обеденным столом выступает центром композиции.
Пол уложен «венгерской елочкой». Цвет выбрали натуральный, без колеровки.
Для новых домов небольшая высота потолка – обычное дело. Поэтому светильники мы использовали небольшие, накладные. Люстру повесили только в гостиной в зоне дивана, для всех остальных помещений выбрали точечные, трековые светильники и бра.
Возможно, на первый взгляд эта квартира покажется простой и этим непохожей на другие наши проекты. Но при детальном рассмотрении здесь можно увидеть очень много мелочей, которые нам удалось собрать в единую картину. Квартира получилось удобной для жизни и уютной, это главное.




















































