Особенности проекта
Стилистику этого проекта продиктовало его местоположение. Здесь особенно хочется по-настоящему расслабиться, отдохнуть в окружении леса и залива, зажечь камин, приглушить свет…

Пожелания заказчика
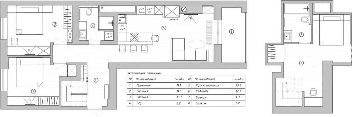
Первый этаж мы целиком оформили в темных тонах, но за счет высоких потолков цвета не давят, не уменьшают помещение зрительно. Продуманное точечное освещение помогает создать любую атмосферу и настроение — как для продуктивного дня, так и для расслабленного hygge-вечера.

Второй этаж
Второй же этаж, напротив, полностью белый, включая отдельный небольшой санузел. Но он не смотрится безлико: мы выдержали неоклассический стиль, разбавив его интересными деталями — например, английскими обоями с принтом джунглей.
Это очень необычная квартира — но хозяева остались довольны результатом, а мы были рады поработать с нестандартным проектом!
















































